- состоит из: встроенной раковины, однорычажного кухонного смесителя
- на 2 отверстия, блока управления, шланговой коробки, комплекта для сбора отходов и перелива
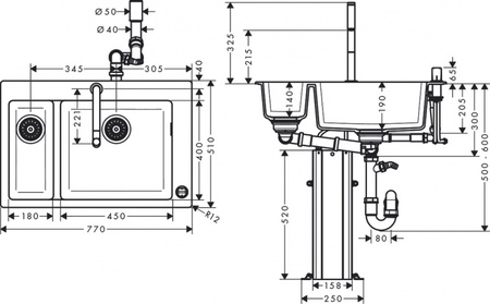
- материал мойки: SilicaTec
- количество чаш: 1 основная чаша и 1 дополнительная чаша
- Отверстие для сверления предварительно определено (см. чертеж в масштабе)
- глубина мойки: 190 мм
- размеры выреза: 750 х 490 мм
- размер шкафа: 80 см
- тип установки: topmount
- Положение перелива: с правой стороны основной чаши
- тип подключения: G ⅜ соединения
- Размер соединения: DN15
- скорость потока 8 л / мин
- подходит для проточных водонагревателей
- керамический картридж
- Магнитная подставка для душа MagFit
- встроенный обратный клапан
- диапазон поворота 150 °
- нормальный спрей
- ComfortZone 200
- Кнопка выбора для удобного запуска / остановки потока воды
- sBox для бесшумного, плавного и защищенного наведения шланга в шкафу, под рабочей поверхностью, с удлинением до 76 см
| Основные характеристики | |||
|
Страна производителя
|
Германия | Форма мойки | Прямоугольная |
|
Монтаж мойки
|
Встраиваемая сверху | Материал мойки | Нержавеющая сталь |
| Габариты | |||
|
Ширина, см
?
|
77 |
Глубина, см
?
|
51 |
|
Высота, см
|
19 | ||
| Внешние свойства | |||
|
Угловая конструкция
|
Нет | Крыло | Нет |
|
Цвет
|
Черный |
Готовое решение
?
|
Да |
|
Поверхность цвета
|
Матовая | Область применения | Для общественных мест и туалетов |
|
Готовые отверстия под смеситель
|
1 | Стилистика дизайна | Хай-тек |
|
Намеченные отверстия под смеситель
|
1 | Гарантия | 5 лет |
|
Основная чаша
|
1 | Тип раковины | Накладная |
|
Дополнительная чаша
|
1 | ||
| Производитель | |||
|
Ценовой сегмент
|
Недорогие модели | ||
Для покупки товара в нашем интернет-магазине выберите понравившийся товар и добавьте его в корзину. Далее перейдите в Корзину и нажмите на «Оформить заказ» или «Быстрый заказ».
Когда оформляете быстрый заказ, напишите ФИО, телефон и e-mail. Вам перезвонит менеджер и уточнит условия заказа. По результатам разговора вам придет подтверждение оформления товара на почту или через СМС. Теперь останется только ждать доставки и радоваться новой покупке.
Оформление заказа в стандартном режиме выглядит следующим образом. Заполняете полностью форму по последовательным этапам: адрес, способ доставки, оплаты, данные о себе. Советуем в комментарии к заказу написать информацию, которая поможет курьеру вас найти. Нажмите кнопку «Оформить заказ».
Вы можете оплатить товар любым удобным способом:
Оплата наличными
Оплата электронными деньгами
Оплата безналичным расчетом (счет, оплата через банк)
Мы работаем без НДС
Доставка по Москве
Доставка по Москве в пределах МКАД осуществляется с 10.00 до 22.00 до подъезда (или до ближайшей к нему точки, куда может подъехать автомобиль). Срок с момента оформления заказа до 5 дней. Более точные сроки уточняйте у менеджера.
- Стоимость доставки Чугунных, акриловых ванн и душевых кабин 600 руб.
- Стоимость доставки унитазов, смесителей и мебели для ванных комнат от 300 до 600 руб.
Доставка по МО
Доставка по Московской области осуществляется с 10.00 до 22.00 до подъезда (или до ближайшей к нему точки, куда может подъехать автомобиль). Срок с момента оформления заказа до 5 дней. Более точные сроки уточняйте у менеджера.
- Стоимость доставки Чугунных, акриловых ванн и душевых кабин 600 руб. + 30 руб/км
- Стоимость доставки унитазов, смесителей и мебели для ванных комнат от 300 до 600 руб. + 30 руб/км
Точная стоимость доставки рассчитывается индивидуально по Яндекс Картам, в зависимости отточного адреса).
Доставка по России
Доставка по России осуществляется Транспортными компаниями.
- Стоимость доставки Чугунных, акриловых ванн и душевых кабин до Транспортной компании 1000 руб
- Стоимость доставки унитазов, смесителей и мебели для ванных комнат до Транспортной компании 500 руб
Вы можете выбрать любую из транспортных компаний и сделать рассчет стоимости от нас до своего города. Точную дату и время доставки сообщит менеджер Транспортной компании после отправки товара.
